Аноним, который водит кампанию, где центральное место занимает большой город, задал мне вот какой вопрос: «Должен ли я нарисовать (и прописать) план каждого здания которое потенциально могут ограбить?»
В такой постановке я не нашёлся, что ответить. Серьёзно, я не могу говорить другим, как они должны или не должны водить свои игры. Но, поразмыслив немного, понял, что Анон на самом деле спрашивал о другом. Вот как должен звучать его вопрос:
«Как мне приготовиться к ситуации, при которой игроки решат ограбить случайное здание».
Здесь действительно есть, о чём поговорить.
Кампании в стиле урбанкроула предусматривают довольно подробно прописанный город. Но даже в рамках такой кампании невозможно подготовить планировку и описание каждого городского здания. Как с этим справляться?
Все здания в городских кампаниях можно разделить на две широкие категории: важные и второстепенные.
Важные здания – те, которые представляют собой особый интерес. Которые мы выделяем в качестве мест для потенциальных приключений. Это как подземелья и логова в гекскроуле. Вам надо знать, как они выглядят.
Необязательно рисовать план: зачастую можно ограничиться текстовым описанием. Большинство зданий не так велики, чтобы устраивать в них данженкроул с десятиминутными ходами и «зачищать» их, как подземелье. Более того, здания, которые выполняют какую-то утилитарную функцию, обычно не отличаются сложной планировкой, свойственной подземельям – скорее, наоборот.
Вот пример текстового описания, которого хватит ведущему, чтобы обработать заявки игроков:
Храм состоит из центрального зала и маленьких келий по его периметру. В каждой келье есть окно в виде высокой узкой щели.
Это очень общее описание. Его можно сделать более конкретным: указать количество келий, их размеры и размеры главного зала. Однако можно оставить и в таком виде. Ведущий может придумать эти подробности самостоятельно, когда возникнет такая необходимость, и даже быстренько набросать план храма на листке бумаги – в случае необходимости, опять же.
Конечно, у здания может быть сложная планировка, которую так просто не опишешь. И это хорошо – потому что сложная планировка означает множество возможностей: разные маршруты проникновения или побега, интересные решения в битве и прочее. Но здесь готовый план здания становится необходим.
Однако то важные здания. Но в любом городе есть десятки, если не сотни, обычных домов, где расположены ремесленные лавки и простое жильё. Невозможно приготовить даже текстовые описания каждой такой постройки. Именно здесь и возникает неясность. Как подготовиться к возможности того, что одно из таких зданий попадёт в фокус внимания игроков?
И проблема здесь не только в том, что игроки могут захотеть совершить грабёж или кражу. Проблема в том, что информация о здании может потребоваться по любому поводу. Игроки решили использовать его, как укрытие для засады. Или логово, в котором можно залечь на дно. В рамках городской кампании возможны тысячи, нет, миллионы ситуаций, предсказать которые мы не в состоянии.
Искусство подготовки любой песочницы как раз в том и состоит – в умении выделить такую информацию, которая станет основой для ведущего. Вокруг которой можно будет додумать все необходимые факты в тот момент, когда они станут необходимы, не прописывая их заранее.
Но вот в чём штука: второстепенные здания будут попадать в фокус вашей игры очень редко. Игроков естественным образом будет тянуть к важным сооружениям. Вокруг них сосредоточена подготовка ведущего, поэтому ведущий просто даёт больше информации о таких зданиях: подробнее описывает, упоминает возможности взаимодействия, имеет «крючки», завязанные на эти локации.
В то время как простые дома и лавки обычно не представляют для игроков интереса. Грабить их, на самом деле, невыгодно – у простых жителей нет таких сокровищ, чтобы оправдать риск (просто посмотрите на сбережения жителей CSIO или Хоммлета), а из сотен домов использоваться в качестве убежища, места для засады и прочих будут… сколько? От силы пять-десять за всю кампанию – и это будет невероятно большое число.
Это значит, что прописывать каждое мелкое здание – не нужно. Как раз для таких аспектов в «песочницах» используются генераторы. Но различных генераторов случайных зданий, их обитателей и содержимого есть множество. Вопрос состоит в планировке, которую так просто по табличке не накидаешь.
Вероятно, планировка случайного здания потребуется вам ещё реже, чем его содержимое. Но такое всё ещё возможно. Вариантов здесь несколько.
Во-первых, у второстепенных зданий обычно очень простой вид. Две-три комнаты – спальня и кухня-гостиная-столовая, кладовая. Для ремесленных лавок – на первом этаже расположена сама лавка и рабочее место, на втором – жилое помещение. Вы можете просто нарисовать это всё на ходу и сохранить рисунок для дальнейшего использования. Потому что, опять же, подобная информация будет требоваться вам очень редко.
Во-вторых, можно использовать генератор зданий из Vornheim City Kit, который создаёт случайное расположение комнат и коридоров, но результаты он выдаёт странные и откровенно безумные, требует кидать дайсы на лист бумаги, что может быть неудобно для онлайн-вождения, и лично мне кажется бесполезным и неудобным. Я уж лучше сам всё придумаю.
В-третьих, можно приготовить небольшой набор обычных схем зданий. Десять-двадцать листов или файлов с изображением усреднённых домов и строений. Вы просто вытаскиваете случайный план из этого набора в тот момент, когда у вас возникает такая надобность, помечаете его и используете дальше, как план конкретного здания. Можно даже использовать один и тот же план для нескольких зданий. Жилые дома не отличаются особым разнообразием.
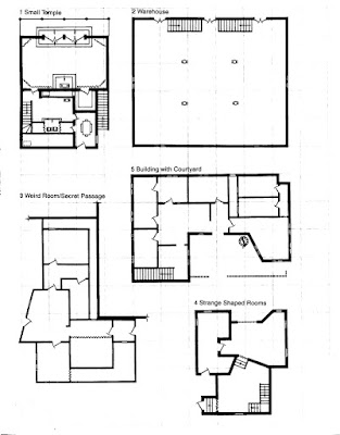
![]() |
| Быстрые здания из Lankhmar: City of Adventure (рецензия) |
Подытожим. Здания в городской кампании можно разделить на важные и второстепенные. Важные здания – как правило, те, для которых у вас есть отдельное описание и блок информации. Для них желательно иметь готовый план (особенно если это большое и сложное сооружение) или хотя бы описание того, как всё устроено внутри и снаружи. Второстепенные здания – здания, которые редко становятся местами для приключений; в их случае можно обойтись небольшим набором генераторов, план рисовать лишь по необходимости и делать это, придумав его на ходу, или использовать заготовленный план из небольшого набора «обычных зданий».
***
Статья написана при поддержке моих патронов: Харальд Бьёрнсон, Ruslan Zmaj, AnungUnRama, Vladislav Petrov, Anton Belov, Anton Palikhov, Dmitrii Tretiakov, Olga Shott, Emergent666, darkmentat, n0tJill, Дмитрий Новиков, Wolfus, Андрей Кириллкин, MagaLodonov, Anonim, Evgeny Ledovskikh, Глеб Гончаренко, Sergey Pomerantsev.

Немає коментарів:
Дописати коментар